Portfolio

Kirke

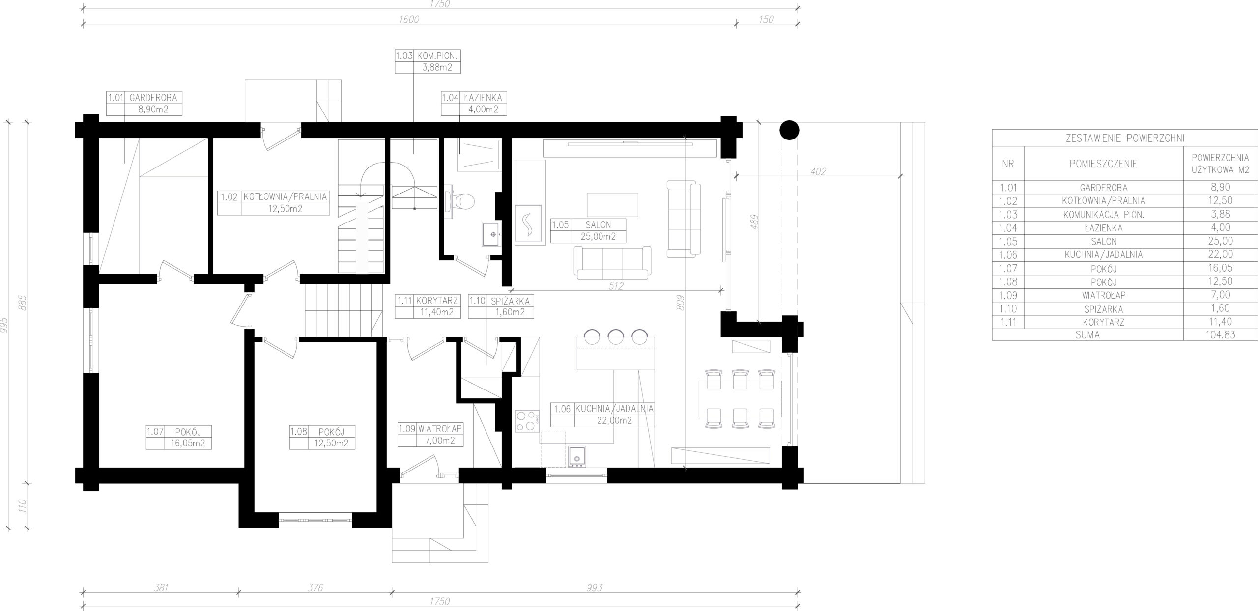
Pow. użytkowa 165 m²
Pow. zabudowy 151.68 m²
Kondygnacje 2
Wymiary 17.49 × 9.95 m
Wysokość 6.31 m
Dach Dwuspadowy / 30°

Kirke to drugi projekt z serii Forest 4 Rest — domów projektowanych z myślą o harmonii z naturą i minimalnym wpływie na otoczenie. Podobnie jak Toth, budynek wzniesiony jest w konstrukcji z bali drewnianych o średnicy 30 cm — materiału nadającego wnętrzom ciepło, zapach i niepowtarzalny charakter.

Bryła prosta i spokojna: dach dwuspadowy 30°, jedna kondygnacja z użytkowym poddaszem, całość wtopiona w leśną działkę. System fotowoltaika + pompa ciepła zapewnia pełną niezależność energetyczną zgodną z WT2021. Budynek przeznaczony dla tych, którzy chcą żyć bliżej lasu — dosłownie.