Nora to projekt nowoczesnej stodoły — zwarta, prostokątna bryła o czystej linii, kryta dachem dwuspadowym z blachą płaską na rąbek. Elewacja z desek opalanych (Shou Sugi Ban) w zestawieniu z naturalnymi akcentami tworzy minimalistyczny, leśny charakter. Budynek wyposażony w mechaniczną wentylację z odzyskiem ciepła i system fotowoltaika + pompa ciepła.
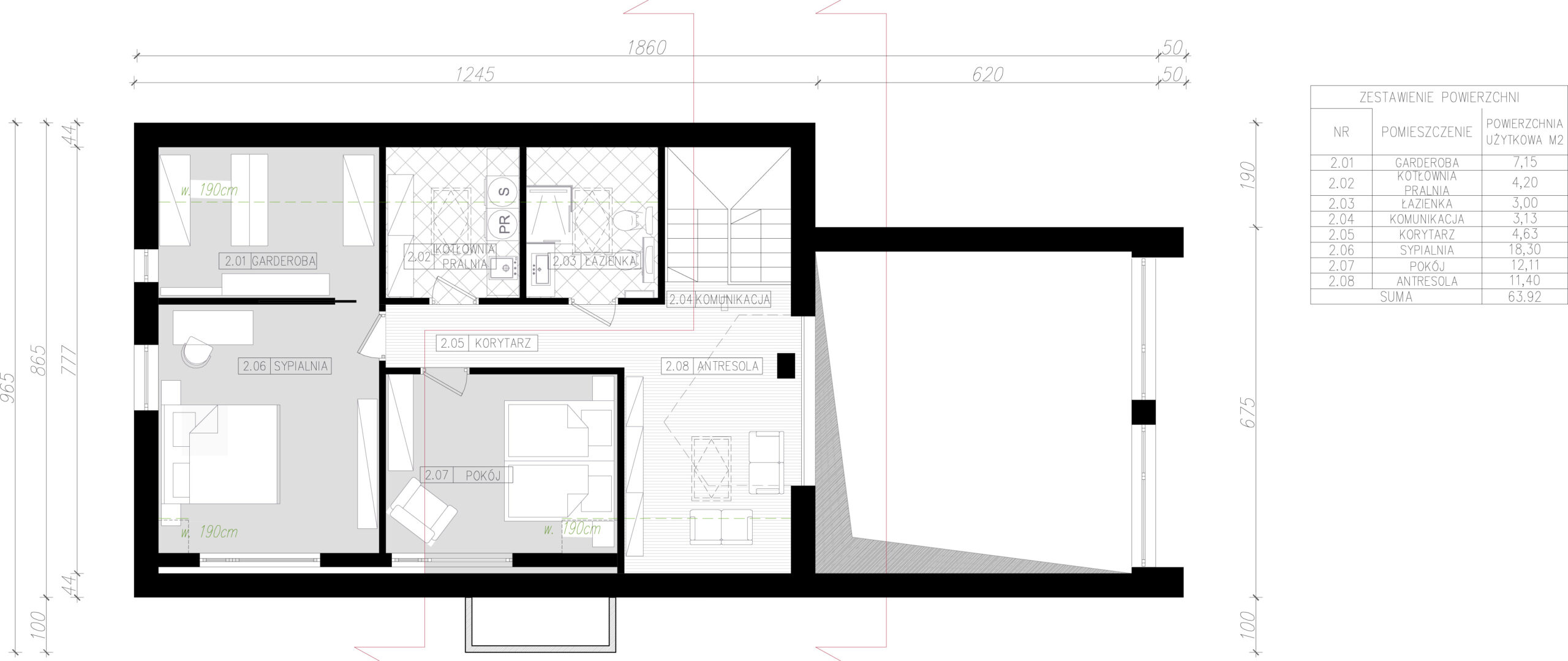
Rozkład funkcjonalny obejmuje parter z garażem lub przestrzenią dzienną oraz poddasze z częścią nocną, balkonem i tarasem. Strop żelbetowy, ściany YTONG z wełną mineralną i pionowym deskowaniem.